We use cookies to personalise content, to provide social media features and to analyse our traffic and support our customers. We also share information about your use of our site with our social media, advertising and analytics partners who may combine it with other information that you've provided to them or that they've collected from your use of their services. You consent to our cookies if you continue to use our website. Learn more

3 Bedroom House For Sale in St Helena Views, JRL36767

Detached House | Sale

Area:
132m2
Beds:
3
Baths:
1

Details

Energy-Efficient, Secure, and Scenic Living on the West Coast! Escape rising electricity costs and loadshedding with this incredible 3-bedroom Plot & Plan opportunity in the sought-after Kapteinskloof Estate, St Helena Bay.

This home is built for modern comfort and sustainability, featuring a powerful 5kW Solar System and a Solar Geyser System included in the purchase price—guaranteeing significant savings and uninterrupted power!

Location & Security Highlights: Security: Peace of mind in a gated community with 24-hour armed response.

Views: Enjoy magnificent sea views at the front and the protective backdrop of the mountain at the back.

Convenience: The estate is pet-friendly and perfectly situated close to shops, doctors, and St Helena Bay's acclaimed local restaurants.

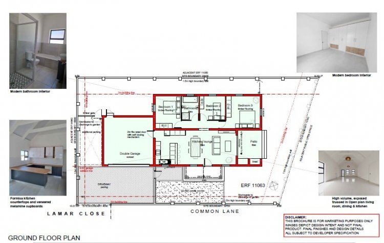
Home Specifications: Bedrooms: 3 spacious bedrooms, finished with attractive timber flooring.

Bathroom: 1 full, well-appointed bathroom.

Living Area: Contemporary open-plan kitchen and lounge layout.

Parking: Secure double garage.

Outdoor: Large patio with a built-in braai, perfect for sunset entertaining.

Approved plans are ready and available on request.

As your local agent, I know Kapteinskloof well and can fast-track your viewing and development query. I am available on short notice.

Don't just buy a house—invest in a sustainable lifestyle!


Map Details


Estate Agent

Pieter Serfontein

Candidate Property Practitioner

Contact Pieter